crwdns2933423:0crwdne2933423:0

MacBook air 13" mid 2011 no backlight

Hey guys so i have this macbook air 2011 and one time a long time ago it was overheating while a macos update and the backlight went dead. I had a few more macbooks air that were for parts and got a screen from one of them and the same thing happend. The board is not liquid dameged and its in good shape.i tried cleaning the connector and the board and still doesn't work. Any ideas?

Block Image
Block Image
crwdns2934081:0crwdne2934081:0 crwdns2934083:0crwdne2934083:0 crwdns2934093:0crwdne2934093:0

crwdns2934109:0crwdne2934109:0

crwdns2889612:0crwdne2889612:0 1
crwdns2947414:01crwdne2947414:0

Do a fresh thermal paste while your at it ;)

crwdns2934271:0crwdnd2934271:0crwdne2934271:0

crwdns2934285:0crwdne2934285:0

crwdns2933313:01crwdne2933313:0

crwdns2934051:0crwdne2934051:0

@s7edgehype "the same thing happend" are you saying that your board is overheating or that you do not have a backlight? First thing I would check is the backlight fuse.

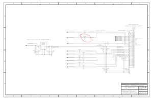
Block Image

That particular one is a 32V 3Amp fuse in a 0603 package. Check for continuity and you can also check for power (board plugged in and turned on). If that is ok the check the voltage on the display adapter (pin 3 or pin 4 is positive)

Block Image
Block Image
  • If the voltage is 0 check for a short then work your way through the backlight circuitry from the connector toward PPBus. The LCDBKLT_FET and enable transistors could be the issue.
  • If the voltage is the same as it is on the fuse (12.6V) your boost circuit isn't working. Check the feedback trace, LCD driver, and the backlight enable.
  • If the voltage is ~25V-40V the boost circuit is working. Check the display cable as well as the connector.
  • If the voltage is ~45V or more there is no load on the backlight circuit. That means it could be a bad display (backlight strips not working)

Backlight Circuit

Let us know what you find out.

crwdns2934105:0crwdne2934105:0

crwdns2889612:0crwdne2889612:0 0

crwdns2944067:04crwdne2944067:0:

@oldturkey03 so when i first got it worked fine only the battery was dead then one-time when it started overheating when it was updateing the backlight just died. I tought that the macbook shut down but i could still see the lights. I saw on google about the fuse but i couldn't found it.I would try to repair it but after i took out the motherboard to take the photos i would only get the green light on the charger,fan spinning and the processor overheating,i tried repluging everyone of them but still no luck. I will get another charger to see if its the charger's fault. Thank you for helping me tho

crwdns2934271:0crwdnd2934271:0crwdne2934271:0

@s7edgehype this "the processor overheating" is worrisome. Check the heatsink and as was previously mentioned replace the thermal paste. Overheating is usually indicative of a short-circuit.

crwdns2934271:0crwdnd2934271:0crwdne2934271:0

@oldturkey03 changed the thermrl paste but after i took the photo and put it back in the housing it wouldn't do anything only green light on the charger and the fan heating. Got a doner board to took the backlight fuse and i will be back

crwdns2934271:0crwdnd2934271:0crwdne2934271:0

@s7edgehype do not forget to measure the voltages. Based on those, you will know where to start further troubleshooting if it becomes necessary.

crwdns2934271:0crwdnd2934271:0crwdne2934271:0

crwdns2934285:0crwdne2934285:0

crwdns2934229:0crwdne2934229:0

S7edgeHype crwdns2934231:0crwdne2934231:0
crwdns2936625:0crwdne2936625:0:

crwdns2936751:024crwdne2936751:0 1

crwdns2936753:07crwdne2936753:0 2

crwdns2936753:030crwdne2936753:0 32

crwdns2942667:0crwdne2942667:0 32