crwdns2933423:0crwdne2933423:0

The Toyota Prius is a hybrid electric car designed by Toyota. The third generation, sold from 2009 to 2015, introduced a new body design with a lower coefficient of drag.

Solar panel on the roof dosen`t work

Hi. Got a "old" Prius 2012 (third generation) and having problem whit the solar panel on top that going to cool down the car while in a hot sommer day. last summer had problem that dosent work and was wondering any info or manuel to see the connetcons

crwdns2934089:0crwdne2934089:0 crwdns2934093:0crwdne2934093:0

crwdns2934109:0crwdne2934109:0

crwdns2889612:0crwdne2889612:0 0
crwdns2934285:0crwdne2934285:0

crwdns2933313:01crwdne2933313:0

crwdns2934057:0crwdne2934057:0

Hi @knutknutse66571

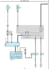
Here are some images taken from the 2009-2015 Toyota Prius service manual showing the solar ventilation electrical wiring diagram that may help.

Block Image
Block Image
Block Image

(click on images)

Also just verifying that you are allowing enough time for the solar powered ventilation system to start operating as shown in this video?

crwdns2934105:0crwdne2934105:0

crwdns2889612:0crwdne2889612:0 1

crwdns2944067:03crwdne2944067:0:

wow that was fast XD

Yes given it some time and standing in direct sunlight to avoid any obstruction. not been a problem until now this summer. Will go through it today and see if I can find the error through the images

crwdns2934271:0crwdnd2934271:0crwdne2934271:0

@knutknutse66571

Good luck.

I also tried to find the location of L104 solar ventilation relay (see image #2) but it is not shown in any fuse box diagram that I found online for the model. Maybe they showed the fuse boxes for the models that didn't have the feature installed or it is installed somewhere else. idk.

Also apologies for the poor images, they were the best I could manage ;-(

Hover your cursor over the image and then click on the magnifying icon. When it opens, click on the image again to enlarge it further and see if that helps.

crwdns2934271:0crwdnd2934271:0crwdne2934271:0

no problem anyting helps ;)

Possibly found out that there must be something with the solar panel itself on the roof that stopped working since I can't find any direct faults. but someone who knows where those wires go without demolishing the whole roof. So I can check the voltage/watt on the solar panel produse any electrical current

crwdns2934271:0crwdnd2934271:0crwdne2934271:0

crwdns2934285:0crwdne2934285:0

crwdns2934229:0crwdne2934229:0

knut knutsen (Skullspirit) crwdns2934231:0crwdne2934231:0
crwdns2936625:0crwdne2936625:0:

crwdns2936751:024crwdne2936751:0 0

crwdns2936753:07crwdne2936753:0 5

crwdns2936753:030crwdne2936753:0 30

crwdns2942667:0crwdne2942667:0 597