crwdns2933423:0crwdne2933423:0

The Chevrolet Cruze is a compact car made by the Chevrolet division of General Motors. The Cruze was first released in 2008 with a front-engine, front-wheel-drive layout.

Passenger window rolls down, but cannot be rolled back up.

I have a 2013 Chevy Cruze lt and rolled down the passenger window but it no longer rolls back up. I changed the regulator thinking it might be that but it still does not go back up. Does anyone have any advice on what it could be?

crwdns2934089:0crwdne2934089:0 crwdns2934093:0crwdne2934093:0

crwdns2934109:0crwdne2934109:0

crwdns2889612:0crwdne2889612:0 1

crwdns2944067:02crwdne2944067:0:

@mili93536 power windows I assume?

crwdns2934271:0crwdnd2934271:0crwdne2934271:0

Yes! Sorry i should’ve been more specific

crwdns2934271:0crwdnd2934271:0crwdne2934271:0

crwdns2934285:0crwdne2934285:0

crwdns2933313:01crwdne2933313:0

@mili93536 could be a bad switch or a bad motor. If you can roll the window up and down, from the drivers control panel, it is most likely the passenger switch. If you can't it's most likely the motor/wiring.

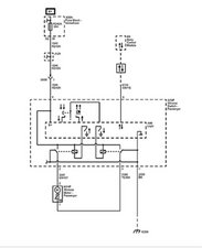
Block Image

Of course, since the BCM is controlling the windows, there are many of things you can check.

Here Cruze Fixed And Moveable Windows is all you ever wanted to know about the windows, moveable or not ;-), on your Cruze. It'll tell you how and where to test as well as how to replace.

Now, if you get stuck anywhere, or if there is anything that is unclear, post some good pictures of that with your Question. That way we can see what you see and hopefully get your window fixed. Adding images to an existing question

crwdns2934105:0crwdne2934105:0

crwdns2889612:0crwdne2889612:0 0

crwdns2944067:03crwdne2944067:0:

Ohh okay thank you! Let me check it out and see if this is the issue!

crwdns2934271:0crwdnd2934271:0crwdne2934271:0

I wasn’t to sure because i was able to get it up before and accidentally rolled it down as that was the only thing that it would allow me to do! Thank you for the suggestion I greatly appreciate it! I will be sure to check what if it is either or of those options!

crwdns2934271:0crwdnd2934271:0crwdne2934271:0

@mili93536 sounds good and I hope you get this fixed. It's always a PITA to actually find out what is wrong with it, but you gotta start somewhere.

crwdns2934271:0crwdnd2934271:0crwdne2934271:0

crwdns2934285:0crwdne2934285:0

crwdns2934229:0crwdne2934229:0

mili crwdns2934231:0crwdne2934231:0
crwdns2936625:0crwdne2936625:0:

crwdns2936751:024crwdne2936751:0 3

crwdns2936753:07crwdne2936753:0 12

crwdns2936753:030crwdne2936753:0 58

crwdns2942667:0crwdne2942667:0 1,110