crwdns2933423:0crwdne2933423:0

Model WRF535SMBM not making ice

Replaced ice maker. Replaced water inlet value. Have plenty of pressure. 16 oz in 20 seconds. Can blow air though tube from inlet value to fridge. But from inlet value to fridge not getting any water. Getting water to inlet value but no further. So not getting any ice.

crwdns2934081:0crwdne2934081:0 crwdns2934083:0crwdne2934083:0 crwdns2934093:0crwdne2934093:0

crwdns2934109:0crwdne2934109:0

crwdns2889612:0crwdne2889612:0 1
crwdns2934285:0crwdne2934285:0

crwdns2933313:01crwdne2933313:0

crwdns2934051:0crwdne2934051:0

Hi @dsocha,

I don’t know the refrigerator but have you checked if the freezer door switch turns off the freezer light when manually operated with the door open?

Looking at the Tech Sheet - W10517966 schematic, the ice maker water solenoid valve gets its power to operate through the door switch i.e. when the door is closed (marked as FRZ light switch on schematic p.2 right side.)

There is also a fuse in the power circuit for the ice maker and the ice maker solenoid valve.

If the freezer door switch, part #16 Freezer liner parts Diagram is faulty or the fuse is blown then the solenoid valve won’t operate.

I’m having difficulty in finding the fuse’s location as the only fuse shown in the parts list is called a fuse clip (part #14 Icemaker parts Diagram) and I’m not sure if this is a fuse or the fuse holder and whether it is part of the ice maker (which you have replaced and the fuse has maybe blown again for some reason) or connected inline in the wiring harness that connects to the icemaker.

If both the door switch and the fuse are OK then there may be a problem with the wiring to operate the ice maker water solenoid valve when required. At least there is the schematic to help. ;-)

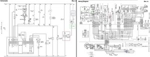
Here’s an image of the schematics from the tech sheet where I’ve highlighted the freezer door switch (red), the fuse (green) and the solenoid valve (blue).

Block Image

(hover mouse over the image and then click on the magnifying glass symbol and then click on the image again after it has opened, to further enlarge)

The supplier linked above is only to show the location and the parts. There are other suppliers online that may suit you better. Just search for WRF535SMBM parts to get results.

crwdns2934105:0crwdne2934105:0

crwdns2889612:0crwdne2889612:0 2

crwdns2944067:02crwdne2944067:0:

Where is the fuse located? Do I need to take off the freezer back wall, inside the freezer?

crwdns2934271:0crwdnd2934271:0crwdne2934271:0

@tye49843

The fuse is an inline fuse in the wiring harness to the ice maker.

If you have a Whirlpool WRF535SMBM model that is.

Here's a link that may help. You can see it inline on the black wire. Search for WPW10458985 to find suppliers that suit you best.

crwdns2934271:0crwdnd2934271:0crwdne2934271:0

crwdns2934285:0crwdne2934285:0

crwdns2934229:0crwdne2934229:0

Doug crwdns2934231:0crwdne2934231:0
crwdns2936625:0crwdne2936625:0:

crwdns2936751:024crwdne2936751:0 3

crwdns2936753:07crwdne2936753:0 7

crwdns2936753:030crwdne2936753:0 38

crwdns2942667:0crwdne2942667:0 4,058