crwdns2933423:0crwdne2933423:0
crwdns2947577:0crwdnd2947577:0crwdne2947577:0

Also known as a multitester, or a VOM (Volt-Ohm meter), a multimeter is an electronic measuring instrument used to measure voltage, current, and resistance. Includes handheld and tabletop testing devices.

Multimeter hang chung 3030s

My multimeter hang chung 3030s is defective ONLY on the 1kohm range. Can someone help me to identify fault?

crwdns2934089:0crwdne2934089:0 crwdns2934093:0crwdne2934093:0

crwdns2934109:0crwdne2934109:0

crwdns2889612:0crwdne2889612:0 0
crwdns2934285:0crwdne2934285:0

crwdns2933313:01crwdne2933313:0

crwdns2934057:0crwdne2934057:0

Hi,

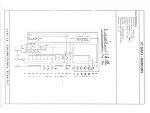
Here’s an image from the service manual for a HC-3030 S analogue multimeter. (is this the one you mean?)

As you didn’t specify what defective means i.e. not working at all or giving incorrect measurement values check that the R7 resistor is connected properly when the test range dial is in the x1K Ohm position and if so that it still has the correct resistance value.

I think that it shows that it is 24.9K Ohms and not 249K Ohms but you may need to verify this as it is hard to make out on the drawing.

Block Image

(click on image to enlarge for better viewing)

crwdns2934105:0crwdne2934105:0

crwdns2889612:0crwdne2889612:0 2

crwdns2944067:03crwdne2944067:0:

Thank you for your prompt help! I checked R7 which reads 24.8k on my multimeter, which is OK.

The fault developed after inadvertently checking ac mains voltage on the x1 ohm range!The fuse blew but no visible burns etc. All other ranges are ok. Please note that x1 range is 1000ohms at left hand of scale. I mention this for further clarification.

Please help further if you can.

Thanks again!

crwdns2934271:0crwdnd2934271:0crwdne2934271:0

@Ronald Sammut

Bit confused as you originally said that "defective ONLY on the 1kohm range" which I thought was the x1K Ohm range but now you're saying the x1 range, is this correct?

If so in that case check R6. Not quite sure as to its value though. It appears to be 7 Ohms on the diagram but I cannot make out what is written after the number. It is not a K or an M.

Hopefully the component still has some markings on it that will help you to identify what its value is

crwdns2934271:0crwdnd2934271:0crwdne2934271:0

Hello again!

Meant to reply sooner.

Yes, the range is the x1 position. I'm afraid I wasn't clear enough, so thank you for your observation.

I checked R6. It resulted open. The value should be 7.8 ohms. I soldered two resistors 4ohm in series quite near the required7.8ohms. The readings on this range are very acceptable considering I had only 5% tolerance ones. I'm very happy now.

I cannot thank you enough for your help.

Warm regards.

crwdns2934271:0crwdnd2934271:0crwdne2934271:0

crwdns2934285:0crwdne2934285:0

crwdns2934229:0crwdne2934229:0

Ronald Sammut crwdns2934231:0crwdne2934231:0
crwdns2936625:0crwdne2936625:0:

crwdns2936751:024crwdne2936751:0 0

crwdns2936753:07crwdne2936753:0 12

crwdns2936753:030crwdne2936753:0 49

crwdns2942667:0crwdne2942667:0 597